Description
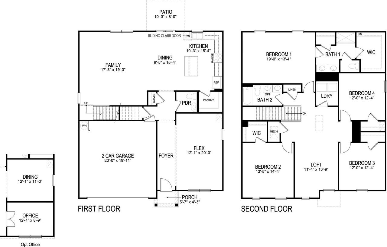
The Hanover floorplan available at Hawk's Ridge in Rossville, GA and is one of our most popular floorplans. The foyer opens into an open concept main level. A large kitchen with a pantry and island with countertop seating overlooks a dining and living area. The downstairs also features a half bathroom and a flex room that could be used as a formal dining space or an office. Upstairs is a loft which provides extra space for work and play. The primary bedroom has a private bathroom and walk-in closet. Three additional bedrooms share a comfortable bathroom. There is also a laundry room upstairs for convenience. This floorplan is designed for any stage of life. *Taxes are estimated. Buyer to verify all information.
-
4BEDS
-
0.14ACRES
-
2BATHS
-
11/2 BATHS
-
2,804SQFT
-
$0$/SQFT
School Information
Description
The Hanover floorplan available at Hawk's Ridge in Rossville, GA and is one of our most popular floorplans. The foyer opens into an open concept main level. A large kitchen with a pantry and island with countertop seating overlooks a dining and living area. The downstairs also features a half bathroom and a flex room that could be used as a formal dining space or an office. Upstairs is a loft which provides extra space for work and play. The primary bedroom has a private bathroom and walk-in closet. Three additional bedrooms share a comfortable bathroom. There is also a laundry room upstairs for convenience. This floorplan is designed for any stage of life. *Taxes are estimated. Buyer to verify all information.
Related Properties
356 Draft Street Rossville, GA 30741
Property Description
Architectural Style Contemporary Attached Garage YN Yes Carport YN No Construction Materials BrickStoneVinyl Siding Exterior Features Rain Gutters Fencing [] Foundation Details Slab Garage YN Yes Lot Features LevelSplit Possible Other Structures [] Parking Features Garage Door OpenerKitchen Level Patio And Porch Features DeckPatioPorchPorch - Covered Pool Features [] Roof AsphaltShingle Roof Asphalt Yes Roof Shingle Yes Structure Type Free Standing Building View [] View YN No Waterfront Features [] Waterfront YN No
Accessibility Features [] Appliances Tankless Water HeaterRefrigeratorMicrowaveGas Water HeaterFree-Standing Electric RangeDisposalDishwasher Basement [] Basement YN No Building Area Total 2804 Cooling Central Air Cooling YN Yes Fireplace Features [] Fireplace YN No Flooring CarpetVinyl Heating CeilingCentralNatural Gas Heating YN Yes Interior Features En SuiteGranite CountersOpen FloorplanPantrySeparate Dining RoomTub/shower ComboWalk-In Closet(s) Laundry Features Electric Dryer HookupGas Dryer HookupLaundry RoomWasher Hookup Levels Two Rooms Office (First Level) Dining Room (First Level) Dining Room (First Level) Family Room (First Level) Primary Bedroom (Second Level) Bedroom (Second Level) Bedroom (Second Level) Bedroom (Second Level) Bonus Room (Second Level) Primary Bedroom Window Features Insulated WindowsVinyl FramesWindow Treatments
Additional Parcels YN No Association Amenities [] Association Fee 350 Association Fee Frequency Annually Association YN2 Yes Auction YN2 No Community Features [] Grazing Permits BLMYN Yes Grazing Permits Private YN No Green Energy Efficient [] Green Energy Generation [] Green Sustainability [] Green Water Conservation [] Listing Terms CashConventionalFHAVA Loan New Construction YN Yes Other Equipment [] Property Sub Type Single Family Residence Security Features Smoke Detector(s) Senior Community YN No Sewer Public Sewer Special Listing Conditions [] Structure Type Free Standing Building Yes Tax Annual Amount 2500 Utilities Cable AvailableElectricity AvailablePhone AvailableSewer ConnectedUnderground Utilities Utilities Sewer Connected Yes Utilities Underground Utilities Yes Water Source Public

Listing information © 2026 The Multiple Listing Service of Chattanooga, Inc.
Listing courtesy of D R Horton Realty of Georgia: 678-509-0555.