Description
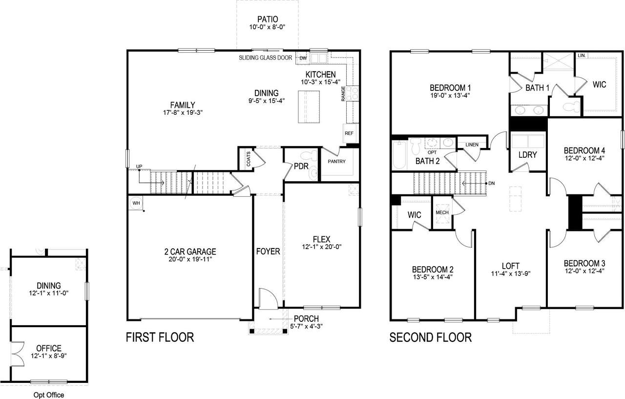
The Hanover floorplan, which is available at Fox Hollow in Dalton. The foyer opens into an open-concept main level, which features a spacious kitchen with a pantry and an island with countertop seating that overlooks a dining and living area. Additionally, the downstairs features a half bathroom and a flex room, which could be used as a formal dining space or an office. Upstairs, there is a loft that provides extra space for work and play. The primary bedroom boasts a private bathroom and walk-in closet, while three additional bedrooms share a comfortable bathroom. For convenience, there is also a laundry room upstairs. This floorplan is designed to suit any stage of life. Home Is Connected Smart Home Package. Seller offering closing cost assistance to qualified buyers. Builder warranty included. See agent for details. Due to variations amongst computer monitors, actual colors may vary. Pictures, photographs, colors, features, and sizes are for illustration purposes only and will vary from the homes as built. Photos may include digital staging. Square footage and dimensions are approximate. Buyer should conduct his or her own investigation of the present and future availability of school districts and school assignments. *Taxes are estimated. Buyer to verify all information.
-
4BEDS
-
0.29ACRES
-
2BATHS
-
11/2 BATHS
-
2,804SQFT
-
$0$/SQFT
School Information
Description
The Hanover floorplan, which is available at Fox Hollow in Dalton. The foyer opens into an open-concept main level, which features a spacious kitchen with a pantry and an island with countertop seating that overlooks a dining and living area. Additionally, the downstairs features a half bathroom and a flex room, which could be used as a formal dining space or an office. Upstairs, there is a loft that provides extra space for work and play. The primary bedroom boasts a private bathroom and walk-in closet, while three additional bedrooms share a comfortable bathroom. For convenience, there is also a laundry room upstairs. This floorplan is designed to suit any stage of life. Home Is Connected Smart Home Package. Seller offering closing cost assistance to qualified buyers. Builder warranty included. See agent for details. Due to variations amongst computer monitors, actual colors may vary. Pictures, photographs, colors, features, and sizes are for illustration purposes only and will vary from the homes as built. Photos may include digital staging. Square footage and dimensions are approximate. Buyer should conduct his or her own investigation of the present and future availability of school districts and school assignments. *Taxes are estimated. Buyer to verify all information.
Related Properties
141 Fox Den Circle Dalton, GA 30721
Property Description
Architectural Style Contemporary Attached Garage YN Yes Carport YN No Construction Materials FrameStoneVinyl SidingOther Exterior Features Rain GuttersSmart Lock(s)Other Fencing [] Foundation Details Slab Garage YN Yes Lot Features Back YardFlag LotLevel Other Structures [] Parking Features DrivewayGarageGarage Door OpenerKitchen Level Patio And Porch Features PatioPorch Pool Features [] Roof AsphaltShingle Roof Asphalt Yes Roof Shingle Yes Structure Type House View [] View YN No Waterfront Features [] Waterfront YN No
Accessibility Features [] Appliances RefrigeratorMicrowaveElectric Water HeaterElectric RangeDisposalDishwasher Basement [] Basement YN No Building Area Total 2804 Cooling Central AirElectricZonedOther Cooling YN Yes Fireplace Features [] Fireplace YN No Flooring CarpetLaminateVinyl Heating CentralElectricZoned Heating YN Yes Interior Features Low Flow Plumbing FixturesPantryPlumbedSmart ThermostatWalk-In Closet(s) Laundry Features Electric Dryer HookupLaundry RoomUpper LevelWasher Hookup Levels Two Window Features Double Pane WindowsInsulated WindowsLow-Emissivity WindowsScreensVinyl FramesWindow Treatments
Additional Parcels YN No Association Amenities [] Association Fee 400 Association Fee Frequency Annually Association YN2 Yes Auction YN2 No Community Features [] Grazing Permits BLMYN Yes Grazing Permits Private YN No Green Energy Efficient [] Green Energy Generation [] Green Sustainability [] Green Water Conservation [] Listing Terms CashConventionalFHAVA Loan New Construction YN Yes Other Equipment [] Property Sub Type Single Family Residence Security Features Smoke Detector(s) Senior Community YN No Sewer Public Sewer Special Listing Conditions [] Tax Annual Amount 2713 Utilities Cable AvailableElectricity ConnectedPhone AvailableSewer ConnectedWater ConnectedUnderground Utilities Utilities Sewer Connected Yes Utilities Underground Utilities Yes Water Source Public

Listing information © 2025 The Multiple Listing Service of Chattanooga, Inc.
Listing courtesy of DHI Inc: 865-338-5674.